PROJECTS << COUNTRY HOMES
Klebanoff Renovations & Pool
New Milford, CT
1984/90
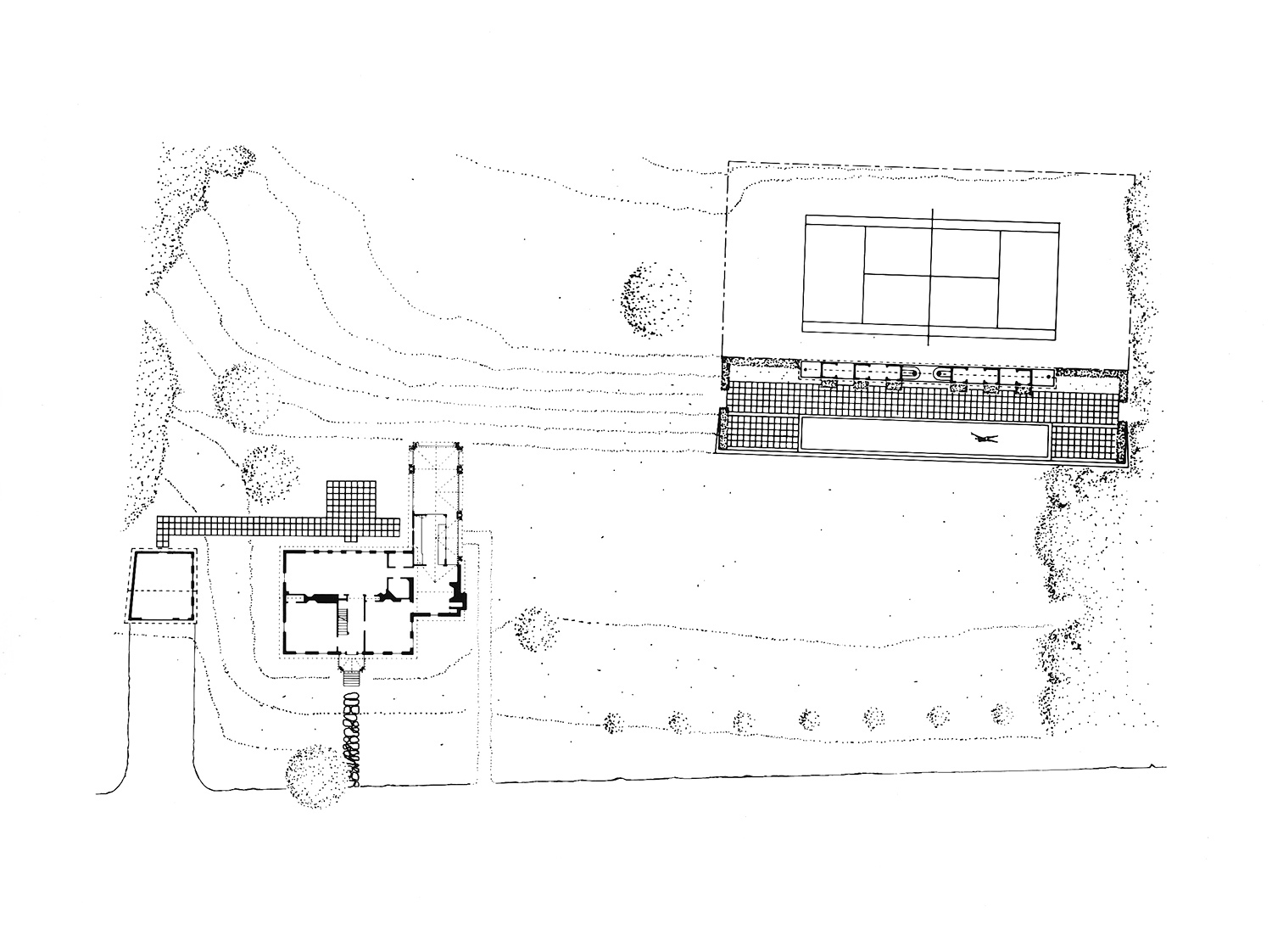
Situated in an idyllic corner of Connecticut, a circa 1800 brick farmhouse has been restored and redated with polite intrusions into a fine fabric. The new kitchen and porch wing is an airy affair, linked thematically to the original wood front portico. The kitchen connects to an opened up original 'hearth' room on one side and is enveloped by the screened addition on the others.
The new swimming pool will be stretched along one side of an existing tennis court, maintaining the large expanse of lawn (and its view from the porch).
The modular man in swimtrunks determines all proportions.

 
                 
                 
                 
                 
                 
                 
                 
                